Just what should the design of the new pavilion look like? The four sports clubs that use it as their base, the trustees and all the villagers have expectations of what will be included, what it will look like and how it should operate. Quite a conundrum, to which health, safety and sports governing bodies can be added.
After considerable work and discussion, a design was agreed with each of the sports clubs and approved by the trustees.
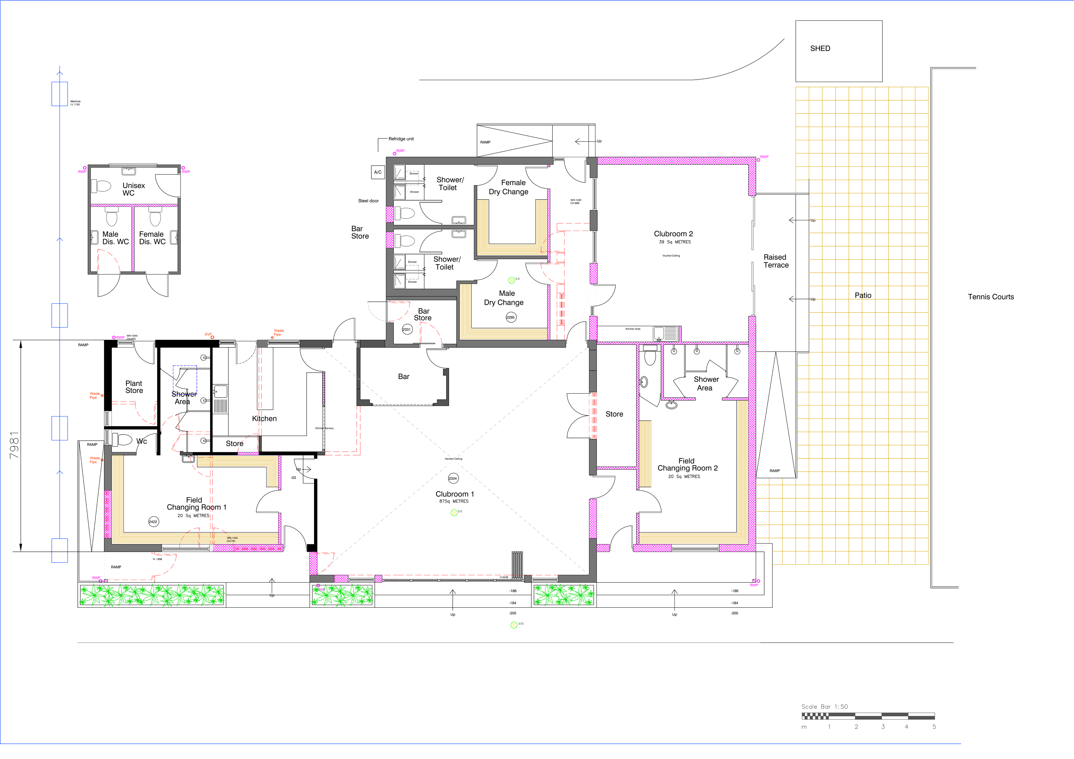
The main features of which are,
- Single storey with clay ties and wood cladding.
- Clubrooms with vaulted ceilings.
- Dirty and clean changing rooms.
- A kitchen that will meet required hygiene standards.
- Disabled toilets and access the building.
- Compliant with ECB regulations.
All in all, a building that is in keeping with the area and should be relevant for the next 50 years.
Click on the images below, they should then be opened in a larger window so that you can see more of the detail.

